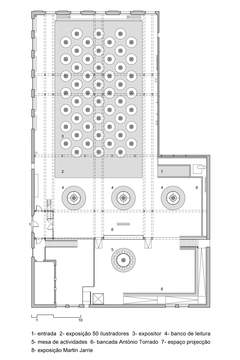
12 de Fevereiro de 2014 • 1557 × 2342 • completed: Ilustrarte’12, Museu da Eletricidade, Lisboa pedrocabrito+isabeldiniz